Trethow-Mor
A distinguished pair of premium family residences on the outskirts of Cubert village.
A pair of high quality family homes situated on the edge of Cubert village with panoramic views overlooking Penhale sandunes towards St Agnes Beacon and St Ives in the distance. Trethow – Mor homes are designed to fit harmoniously into their surroundings of open countryside.
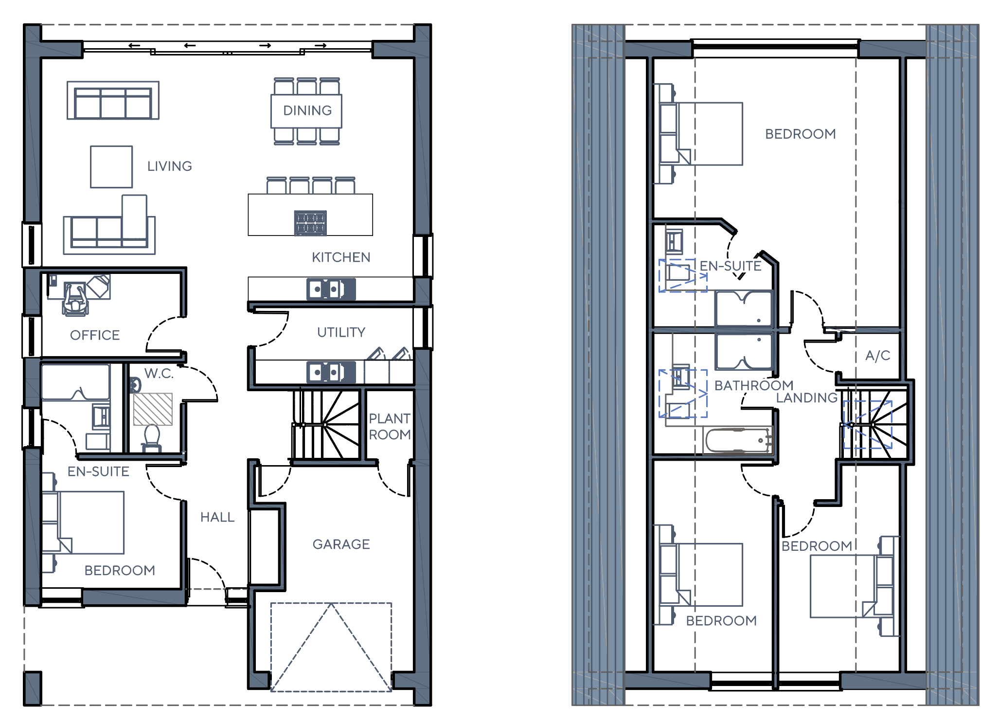
Each home has a large open plan kitchen, dinning and lounge area with sliding doors that open out onto the rear south facing gardens to make the most of the elevated position. Along with four bedrooms, two with ensuite a utility, office and integrated garage.
The homes are designed to be energy efficient as possible by incorporating green technologies to reduce energy consumption.
To register your interest or for more information on Trevow-Mor, please contact David Ball Agencies using the ‘Register your Interest’ form.
Alternatively call 01637 850850 or email sales@dba.estate
